主营:机电检测设备、计算机软硬件技术研发、技术咨询、技术服务;机电检测设备制造;测试仪器设备、监控设备、通
咨询电话:
18640375704
| 价格 | ¥ 50000.00 | ¥ 40000.00 |
| 起订量 | 1-3套 | ≥3套 |
好货推荐
| 产品名称 | 风机盘管热工性能试验机 | 生产货源 | 中国辽宁省 |
| 型号 | FJPG-II | 数量 | 充足 |
| 产品用途 | 用于检测设备安全性能 | 执行标准 | 国标 |
PRODUCT DETAILS
温馨提示:设备价格仅供参考,具体报价根据设备定制报价
一 概述
近年来,随着城镇化建设的加快和人民生活水平的提高,我国每年城乡新建房屋建筑面积近20亿平方米,从而导致建筑能耗也随之逐年大幅度增加,从而导致我国建筑能耗总量不断增加,在全社会终端能源消耗中所占比例也逐步提高。如此快速增加的建筑能耗无疑将给我国的能源供应和环境保护带来沉重的压力,因此我国实施建筑节能迫在眉睫。
在我国经济飞速发展、人民群众生产生活水平迅速提高的今天,全国各地区尤其是气候炎热的南方地区,公用建筑和民用建筑大面积采用耗能高的中央空调和家用空调产品。因此,空调能耗占建筑总能耗相当大的比例,针对空调产品末端重要产品——风机盘管的各项性能指标的严格检测,提高其产品质量,降低其能耗势在必行。
沈阳微特通用技术开发有限公司(以下检称我公司)多年来与各省建筑科学研究院充分合作,从事建筑节能系列检测设备研制生产。在充分发挥国内大型科研院所(中科院沈阳计算技术研究院)热工、机械、暖通、制冷、锅炉、自控、仪器仪表及计算机多学科综合科研优势,并吸取国内外相关产品的经验教训基础上,研制开发新一代FJPG-II型风机盘管热工性能检测试验机(以下简称FJPG-II风机盘管试验机)。
FJPG-II风机盘管试验机满足以下国家标准的技术要求:
GB/T 19232-2019《风机盘管机组》
GB 50411-2007《建筑节能工程施工质量验收规范》
GB 50243-2002《通风与空调工程施工质量验收规范》
GB/T 15586-1995《设备及管道保冷设计导则》
GB/T 14294-2003《组合式空调机组》
我公司在参考国内外同类试验装置特点的同时结合我国使用单位的实际情况,既满足机组性能测试的全部技术要求,又力求降低该试验室的初投资及将来使用该装置的运行维护成本。

在方案设计中,充分发挥沈阳微特通用技术开发有限公司的综合技术优势及大量的建筑节能检测实践优势,结合我们多年来在热工测量、传感器技术、计算机数据采集与处理技术,使本试验装置体现技术水平的同时力求为用户创造良好的经济效益。
FJPG风机盘管试验机适用于外供冷水、热水,由风机和盘管组成的机组,对房间直接送风,具有供冷、供热或分别供冷和供热功能,其送风量在3400m3/h以下,出风口静压不大于120 Pa的机组。
FJPG风机盘管试验机具有温度稳定时间快速,节约能源,结构合理,操作简便,采集数据精确,运行稳定可靠,自诊断保护措施完善,全过程存储实验记录,打印原始数据完成实验等多项功能。是相关产品生产厂家、科研院所、检测机构理想的更新换代产品。
二 测试对象、测试项目及装置特点
2.1 测试对象
风机盘管机组为空调系统末端设备,主要由离心风机、换热盘管组成,用水作为制冷或加热介质。它广泛适用于商店、办公室、宾馆、住宅、工厂、银行、医院等多房间工业或民用中央空调场合,以满足降温、去湿、采暖等要求。
FJPG-II风机盘管试验机主要用于风机盘管机组进行性能试验和工作状态分析。风机盘管机组是指由风机和盘管组成的机组,对房间直接送风,具有供冷、供热或分别供冷和供热功能,其送风量在3400m3/h以下,出风口静压不大于120 Pa的机组。
2.2 测试项目
主要测试项目包括:(1)启动和运转试验;(2)风量检测试验(输入功率);(3)供冷量、供热量试验(出口静压);(4)水阻试验;(5)供冷能效系数(FCEER);(6)供热能效系数(FCCOP);(7)凝露试验(用于型式试验);(8)凝结水处理试验(用于型式试验)。
另外,用户还可以选配必要的小型测试仪表,完成(9)耐压性试验与密封性试验;(10)绝缘电阻试验;(11)电气强度试验;(12)电机绕组温升试验;(13)泄漏电流试验;(14)接地电阻试验;(15)湿热试验。
2.3 主要技术参数
(1)空气干球温度范围:20℃~35℃, 空气湿球温度范围:14℃~27℃,测量精度:±0.1℃
(2)热水温度控制范围:30℃~70℃, 冷水温度控制范围: 5℃~16℃,控制精度:±0.1℃
(3)空气风量控制范围:100~3400m3/h, 测量精度:±1%
(4)水量控制范围:0~4m³/h,测量精度:±1%
(5)冷量计量范围:1000~19000W;热量计量范围:600~28000W
(6)供电要求:AC 380V,65kW 三相五线制动力电 AC 220V,2kW 单相三线制照明
(7)环境箱最小外形尺寸:(长×宽×高)卧式结构:(9 m×4.5 m×2.8 m);
立式结构:(7 m×6 m×4.5 m);(根据用户场地条件调整)
其中计算机控制室外形尺寸:3.5 m×4 m×2.8 m;
风机盘管安装恒温恒湿室外形尺寸:5 m×4 m×2.8 m;
控制动力柜外形尺寸:1m×0.9m×1.8m。
2.4试验装置的特点
l 试验精度高
经过精心设计,结合以往项目经验,选配合适量程传感器,配合专用监控软件可自动对数据进行标定和修正,确保试验结果的准确性;采用数字滤波技术及智能温度调节仪表微调控制系统,确保试验结果的稳定性。试验精度及重复性均满足相关标准要求。
l 自动化程度高
采用计算机自动数据采集处理系统与进口温度专家调节仪表系统,可以对所有试验数据进行自动采集、自动处理、误差修正、存储打印试验数据;试验过程的环境监控也可通过自动微调实现。
l 符合国家标准
本试验装置的试验方法符合相关国家标准《GB/T 19232-2019风机盘管机组》和生产许可证审查的技术要求。
三 测试方法和依据标准
3.1 测试方法
FJPG风机盘管试验机风量测量采用流量喷嘴,供冷量和供热量的测试采用房间式空气焓值法测量装置,其中水侧采用液体载冷剂法、空气侧采用空气焓差法。
3.2 依据标准
GB/T19232—2019 《风机盘管机组》、JG/T 21—1999《空气冷却器与空气加热器性能试验方法》
3.3 测试范围
最大供冷(热)量19/28kW,最大风量3400m3/h,出口静压不大于120Pa。
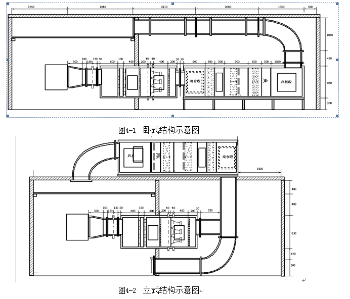
四 试验原理及装置结构
根据用户场地布置条件,试验原理及装置结构如图1-1,1-2 所示。




该试验装置对风侧和水侧的供冷(热)量同时进行测量,在偏差有限范围内进行算术平均并计算机组的供冷量或供热量。其中风侧系统由静压室、空气流量测量装置、空气循环系统等组成;水侧系统由流量、压差、温度等测量系统及循环管路组成。整个试验过程中的冷热源由外部机组及水箱装置组成。
五 试验工况及测量精度
5.1 试验工况
a) 机组额定风量和输入功率的试验工况参数按表1 的要求。
表1 额定风量和输入功率的试验参数
项 目 | 试验参数 | ||
机组进口干球温度/℃ | 19~21 | ||
供水状态 | 不供水 | ||
风机转速 | 高档 | ||
出口静压/Pa | 低静压机组 | 带风口和过滤器等 | 0 |
不带风口和过滤器等 | 12 | ||
高静压机组 | 额定静压 | ||
机组电源 | 电压/V | 220 | |
频率/Hz | 50 | ||
b) 通用机组额定供冷量、供热量的试验工况参数应按表2 的要求,其它性能试验参数应按表3 要求。
表2 通用机组额定供冷量、供热量的试验工况参数
项目 | 供冷工况 | 供热工况 | |||||
两管制 | 四管制 | ||||||
进口空气状态 | 干球温度/℃ | 27 | 21 | 21 | |||
湿球温度/℃ | 19.5 | ≤15 | ≤15 | ||||
供水状态 | 供水温度/℃ | 7 | 60 | 45 | 60 | 45 | |
供回水温差/℃ | 5 | --- | --- | 10 | 5 | ||
供水量/(kg/h) | 按水温差得出 | 与供冷工况相同 | 按水温差得出 | ||||
风机转速 | 高档 | ||||||
出口静压/Pa | 低静压机组 | 带风口和过滤器等 | 0 | ||||
不带风口和过滤器等 | 12 | ||||||
高静压机组 | 额定静压 | ||||||
表3 其他性能试验工况参数
项 目 | 凝露试验 | 凝结水处理试验 | 噪声试验 | ||
进口空气状态 | 干球温度/℃ | 27.0 . 0 | 27.0 | 常温 | |
湿球温度/℃ | 24.0 . 0 | 24.0 | |||
供水状态 | 供水温度/℃ | 6.0 | 6.0 | — | |
水温差/℃ | 3.0 0 | 3.0 . | — | ||
供水量(kg/h) | 按水温差得出 | 按水温差得出 | 不供水 | ||
风 机 转 速 | 机组可设定的最低挡 | 高挡 ~ ~ | 高挡 | ||
出口静压/Pa | 低静压机组 | 带风口和过滤器等 | 0 | 0 | 0 |
不带风口和过滤器等 | 可设定的最低挡 所对应的静压值 | 12 | 12 | ||
高静压机组 | 额定静压 | 额定静压 | |||
5.2 试验精度
表4 各类测量仪器的准确度
测量参数 | 测量仪表 | 测量项目 | 单位 | 仪表准确度 |
温 度 | 铂热电阻 数字显示仪 | 空气进出口干湿球温度、水温 | ℃ | 0.1 |
其他温度 | 0.3 | |||
压 力 | 微压差传感器、倾斜式微压差计数字显示仪 | 空气动压、静压 | Pa | 1.0 |
大气压力计 | 大气压力 | hPa | 1.0 | |
压力传感器 | 水阻力 | kPa | 1.5 | |
水量 | 各类流量计 | 冷、热水量 | % | 1.0 |
风量 | 各类计量器具 | 风量 | % | 1.0 |
时间 | 秒 表 | 时间 | s | 0.2 |
重量 | 各类台秤 | 重量 | % | 0.2 |
电特性 | 功率表 | 电气特性 | 级 | 0.5 |
电压表 | ||||
电流表 | ||||
频率表 | ||||
噪声 | 声级计 | 噪声 | dB(A) | 0.5 |
仪表准确度一栏为标准要求。
表5 试验读数的允许偏差
项 目 | 单次读数与规定试验工况最大偏差 | 读数平均值与规定试验工况的偏差 | |
进口空气状态 | 干球温度/℃ | ±0.5 | ±0.3 |
湿球温度/℃ | ±0.3 | ±0.2 | |
水 温 | 供冷/℃ | ±0.2 | ±0.1 |
供暖/℃ | ±0.2 | ±0.1 | |
进出口水温差/℃ | ±0.2 | ---- | |
出口静压/Pa | ±2.0 | ---- | |
电源电压/% | ±2.0 | ---- | |
六 试验装置总体结构
试验室整体由组成试验室所必需的保温结构、试验过程中提供给风机盘管的冷热
源及换热设备以及测量控制系统组成。总体布置如图具体如下。

6.1 实验装置冷(热)源及换热设备
实验装置冷(热)源及换热设备包括风冷热泵机组、加热器、加湿器、冷却器及
水箱、水泵、风机等。该套设备要有足够的容量,以确保被试机组入口空气状态水侧
水温、流量等参数的要求。

6.2 围护结构
风盘性能试验需要在由保温结构构成的试验室中进行。要求该试验室内部尺寸为
3500mm(W)×9000mm(L)×2800mm(H)。顶部采用孔板送风方式,高度要求大于400mm。围护结构可采用双面彩色钢板内充100mm 厚聚苯乙烯发泡保温结构,进门宽度大于1200mm,门上设400mm×400mm 观察窗。围护结构可由使用方自备。
6.3 测量控制系统
测量控制系统由风量测量系统、各种参数测量传感器、变送器、调节设备、电气
控制组件及控制柜等组成。

6.4 计算机数据采集与处理系统
6.4.1 计算机数采系统构成
自动采集与处理系统由计算机硬件及软件组成。主要用来自动采集试验过程中的各种参数,偏差修正、计算并显示结算结果,按试验要求打印数据。
该系统采用工业控制用计算机,性能稳定,适合于工厂等恶劣环境下使用。输入系统采用14 位高精度智能数字仪表,配合自主研发的软件通讯技术,保证数据采集过程实时、稳定、准确。
硬件功能的充分发挥离不开软件系统的支持,设计合理、功能完善、使用方便、具有良好人机交互界面的软件,能充分发挥硬件的功能,提高系统的稳定性、可靠性及操作的方便性。
整个软件系统可划分为以下几个功能模块:界面管理模块、数据采集模块、实施监控模块和数据处理模块,软件的总体结构层次图和软件界面图如图6所示。
其中,界面管理模块的主要功能是管理主窗口、响应按钮命令和响应对话框中的消息;数据采集模块主要完成对数据的采集并在显示窗口实时显示采集的试验数据及存储试验开始前用户输入的参数;实时监控模块主要是根据用户的设定值与实时更新的数据进行对比并计算控制量送入执行机构中;数据处理模块则在完成试验后存储和打印试验报告。

七 使用方场地及人员配备的要求
7.1 厂房内场地
环境箱最小外形尺寸:(长×宽×高)卧式结构:(9 m×4.5 m×2.8 m);
立式结构:(7 m×6 m×4.5 m);(根据用户场地条件调整)
其中计算机控制室外形尺寸:3.5 m×4 m×2.8 m;
风机盘管安装恒温恒湿室外形尺寸:5 m×4 m×2.8 m;
控制动力柜外形尺寸:1m×0.9m×1.8m。
按照试验室标准提供照明。控制室配备1P以上空调。
7.2 动力电源与上下水
动力电源:AC380V±5%,65kW,三相五线制;
控制电源:AC220V±5%,2kW,二相三线制,接地电阻:≤4Ω;
用水量:提供不小于2m3/h 流量的自来水,水压大于0.2MPa;
下水管道畅通。
7.3 试验人员配置
人员配置:试验人员2 名以上,要求具备空调、制冷专业和电气专业相关基础知识,有相关工作经验。
产品推荐