主营:许可项目:各类工程建设活动,建筑智能化工程施工,建筑智能化系统设计,建设工程设计(依法须经批准的项目
咨询电话:
18002495888
| 价格 | ¥ 1280.00 |
| 起订量 | ≥1平 |
好货推荐
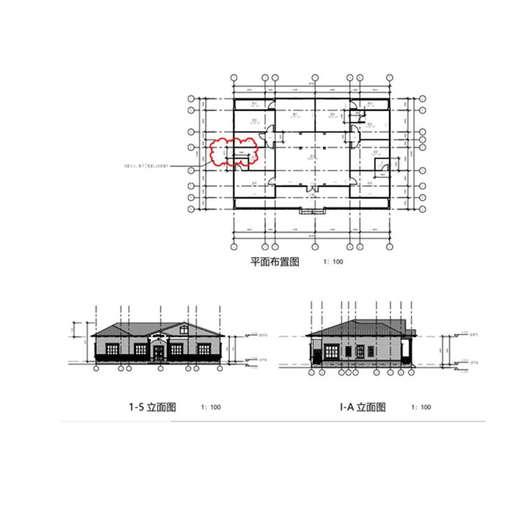
| 项目名称 | 朝阳轻钢别墅 | 品牌 | 欧飞建筑 |
| 产地 | 沈阳 | 材质 | 轻钢龙骨,保温板材等 |
| 墙体厚度 | 120-200㎜ | 增值服务 | 免费设计 |
| 产品特质 | 保温、隔热、隔音 | 楼面材质 | C型钢 U型钢 |
| 优惠活动 | 详询18002495888 |
PRODUCT DETAILS




轻钢别墅厂家 沈阳轻钢别墅定做 沈阳彩钢别墅定做 彩钢别墅定做 沈阳轻钢别墅厂家公司
产品推荐